Na prenájom

EXKLUZÍVNA ponuka nájomných kancelárskych a obchodných priestorov v novom OC SEREĎ od 9 EUR/m2 + Energie (DOHODA)

Cukrovarská ulica, Sereď

€11 / mesiac

  • Typ nehnuteľnostikancelárske priestory

      Ponúkame na prenájom priestranné obchodné a kancelárske priestory v novom OC mesta Sereď. Polyfunkčný objekt je novostavbou, ktorá otvára svoje brány začiatkom roku 2024.               

 

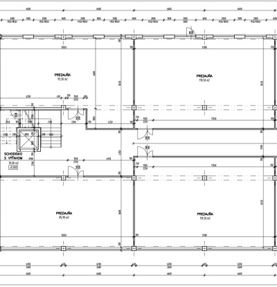
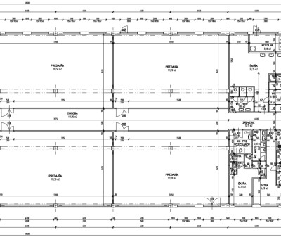
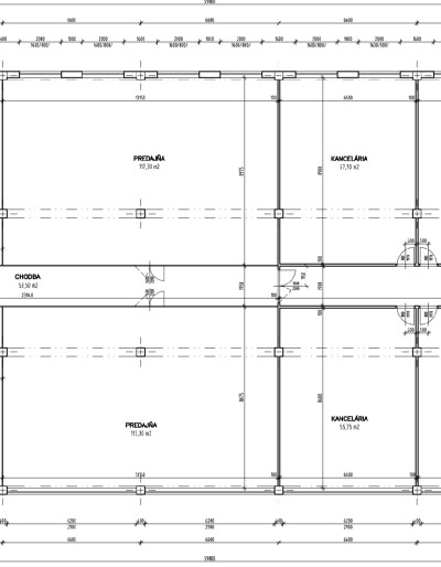
      Jedná sa o dvojpodlažnú budovu. Interiér prízemia, ktorého rozloha je 1 200 m2, tvoria zaskle n é priestory vhodné na využívanie ako obchodné priestory i kancelárske priestory. Zadná časť prízemia pozostáva z rozsiahlych obchodných priestorov. K dispozícii sú aj spoločné sociálne zariadenia.             

 

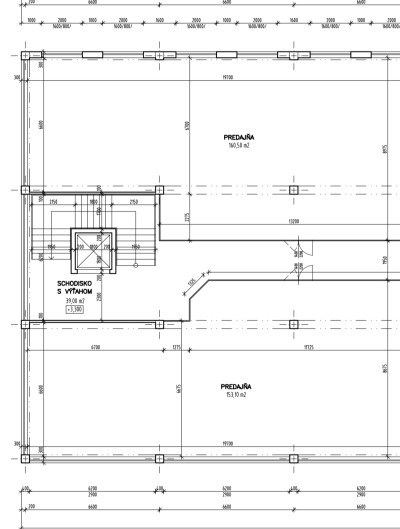
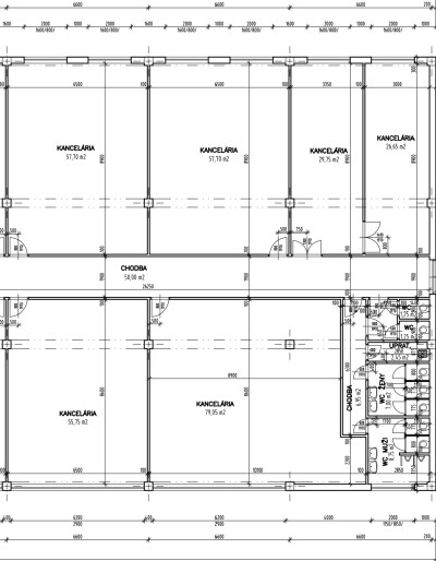
      Na poschodie  je možné sa dostať schodiskom, ale aj výťahom. Interiér poschodia, ktorého rozloha je ďalších 1 200 m2, je rozlože do viacerých zasklených kancelárií. Druhú časť poschodia tvoria štandardné kancelárie so vstupnými dverami. Taktiež aj poschodie je vybavené toaletami a kúpeľňou. Interiér je pokrytý dlažbou, vybavený novými radiátormi, plastovými oknami, bezpečnostnými zariadeniami. Pred obchodným centrom je vybudované priľahlé parkovisko pre návštevníkov alebo klientov.               

 

Výhodná lokalita neďaleko OD KAUFLAND, OD BILLA, základných a stredných škôl Serede.              

 

           Obchodné priestory sú vhodné pre maloobchodné predajne, banky, poisťovne, lekárne, papiernictvo, kníhkupectvo, klenotníctvo, obchody s oblečením, trafiky, obchody s elektronikou, hračkárstvo, kaderníctvo, barbershop, kvetinárstvo, drogériu, kaviarne...               

         Kancelárske priestory je možné poskytnúť firmám alebo SZČO prevádzkujúcim administratívne služby, právne služby, notárske služby, poradenské služby,                 
 

 

Prízemie (1 200 m2) : cca 11 EUR/m2 + energie               

Obchodný priestor 85,90 m2               

Obchodný priestor: 93,30 m2              

4x Obchodný priestor: 110,50 m2               

2 x Obchodný priestor: 111,70 m2              


 

Poschodie (1 200 m2) : cca 9 EUR/m2 + energie               

Obchodný priestor: 160,50 m2               

Obchodný priestor: 153,10 m2               

Obchodný priestor 117,30 m2              

Obchodný priestor : 113,30 m2               
              

2x Kancelársky priestor: 55,75 m2               

3x Kancelársky priestor: 57,70 m2               

1x Kancelársky priestor: 79,05 m2               


 

Nájomca je povinný pri podpise zmluvy uhradiť :               

1x Nájom + energie                

2- mesačný depozit vo výške nájmu               
 

PRIESTORY SÚ VOĽNÉ IHNEĎ.               

 

NEVÁHAJTE A ROZŠIRUJTE SIEŤ SVOJEJ ZNAČKY               

 

Čo tieto priestory majú a ostatné nie:              

• Výhodnú lokalitu v obchodnej časti mesta Sereď              

• Obchodné i kancelárske priestory             

• Priľahlé parkovisko pre klientov           

      

VOLAJTE!               



 

  • Parkovanie
  • Kúrenie

Cukrovarská ulica

Škola

300m

Napísať recenziu

Prosím prihláste sa pre pridanie recenzie!

5

Priemerné hodnotenie

Chcete sa stať naším maklérom ?

Pomôžeme vám s kariérnym rastom.
Pripojte sa k nám